Thiết kế & thi công nhà cấp 4 mái Nhật hiện đại – Chủ đầu tư Anh Nghĩa
Trong những năm gần đây, nhà cấp 4 mái Nhật đang trở thành xu hướng được nhiều gia đình lựa chọn nhờ sự hài hòa giữa thẩm mỹ, công năng và chi phí xây dựng hợp lý. Công trình nhà cấp 4 của chủ đầu tư Anh Nghĩa là một dự án tiêu biểu, thể hiện rõ phong cách kiến trúc hiện đại, sang trọng nhưng vẫn gần gũi và phù hợp với điều kiện khí hậu Việt Nam.
1. Thông tin tổng quan dự án
- Chủ đầu tư: Anh Nghĩa
- Loại hình: Nhà cấp 4
- Phong cách: Hiện đại – mái Nhật
- Công năng: Không gian sinh hoạt tiện nghi, tối ưu sử dụng
Ngay từ giai đoạn thiết kế, gia chủ mong muốn một ngôi nhà có hình thức hiện đại, bền vững theo thời gian nhưng không quá cầu kỳ, phù hợp cho sinh hoạt gia đình lâu dài. Phương án thiết kế tập trung vào sự cân đối hình khối, bố cục rõ ràng và khả năng tận dụng ánh sáng, gió tự nhiên.
2. Kiến trúc nhà cấp 4 mái Nhật – Thanh thoát và bền vững
Điểm nổi bật của công trình là hệ mái Nhật với độ dốc vừa phải, giúp thoát nước tốt, chống nóng hiệu quả và tạo cảm giác thanh thoát cho tổng thể kiến trúc. Mái được thiết kế giật cấp nhẹ, tăng chiều sâu và tính thẩm mỹ cho công trình.
Hình khối kiến trúc vuông vức, khỏe khoắn kết hợp các mảng tường phẳng tạo nên vẻ đẹp hiện đại, tinh tế. Các chi tiết trang trí được tiết chế tối đa, tập trung vào tỷ lệ và vật liệu để tạo nên sự sang trọng nhẹ nhàng.
3. Thiết kế mặt tiền – Hiện đại và hài hòa
Mặt tiền công trình sử dụng gam màu trung tính làm chủ đạo, kết hợp hài hòa giữa màu sơn sáng, mảng ốp và hệ cửa kính lớn. Thiết kế này không chỉ giúp ngôi nhà trở nên nổi bật mà còn tạo cảm giác rộng rãi, thoáng đãng hơn so với diện tích thực tế.
Hệ cửa kính khung nhôm hiện đại được bố trí hợp lý, giúp đón ánh sáng tự nhiên tối đa, đồng thời tăng tính kết nối giữa không gian bên trong và bên ngoài ngôi nhà.
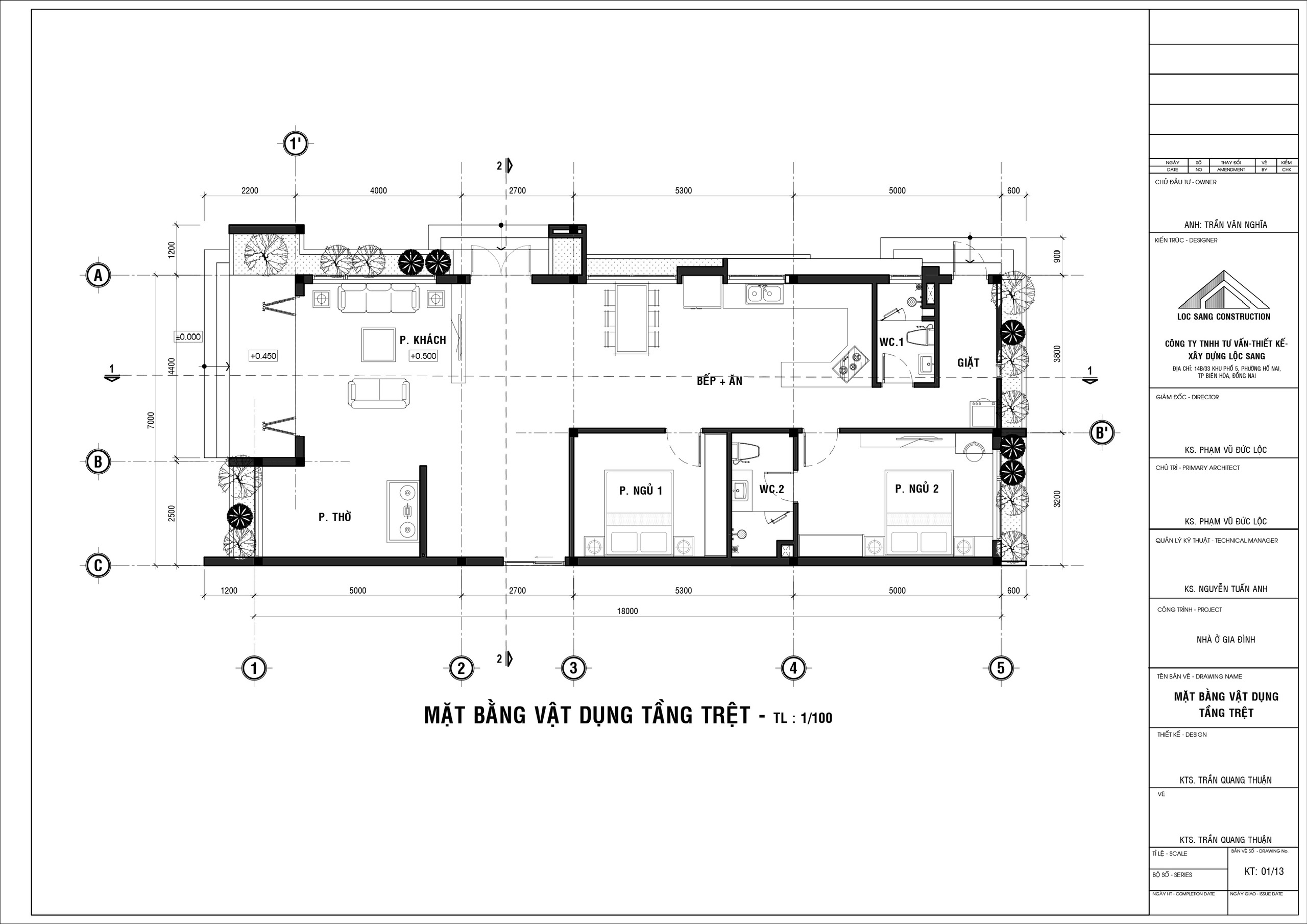
4. Giải pháp công năng khoa học, tiện nghi
Dù là nhà cấp 4, công trình vẫn được bố trí công năng một cách khoa học, đảm bảo sự tiện nghi trong sinh hoạt hằng ngày. Các không gian chức năng được sắp xếp hợp lý, hạn chế hành lang thừa, giúp tối ưu diện tích sử dụng.
- Không gian phòng khách rộng rãi, thông thoáng
- Khu vực bếp và phòng ăn bố trí gọn gàng, tiện lợi
- Phòng ngủ đảm bảo sự riêng tư và yên tĩnh
- Khu vệ sinh và khu phụ trợ được bố trí hợp lý
Thiết kế ưu tiên sự thoải mái, thuận tiện cho mọi thành viên trong gia đình, đặc biệt phù hợp với gia đình có người lớn tuổi.
5. Vật liệu sử dụng & giải pháp hoàn thiện
Công trình sử dụng các vật liệu hiện đại, đảm bảo độ bền và tính thẩm mỹ lâu dài:
- Sơn ngoại thất cao cấp, chống bám bẩn
- Hệ cửa kính giúp lấy sáng và thông gió tốt
- Mái Nhật chất lượng cao, chống nóng và cách nhiệt
- Đá và gạch ốp trang trí tạo điểm nhấn mặt tiền
Sự lựa chọn vật liệu phù hợp giúp công trình không chỉ đẹp khi mới hoàn thiện mà còn dễ dàng bảo trì, sử dụng ổn định trong thời gian dài.
6. Giá trị mà công trình mang lại cho gia chủ
Ngôi nhà cấp 4 mái Nhật của anh Nghĩa không chỉ đáp ứng nhu cầu an cư mà còn mang lại nhiều giá trị thiết thực:
- Không gian sống hiện đại, thoáng mát
- Chi phí xây dựng hợp lý, tối ưu ngân sách
- Phù hợp sinh hoạt gia đình lâu dài
- Giá trị thẩm mỹ và sử dụng bền vững theo thời gian
7. Kết luận
Dự án nhà cấp 4 mái Nhật hiện đại của chủ đầu tư Anh Nghĩa là sự kết hợp hài hòa giữa kiến trúc hiện đại, công năng tiện nghi và giải pháp xây dựng bền vững. Đây là lựa chọn lý tưởng cho những gia đình đang tìm kiếm một không gian sống đẹp, thoải mái và phù hợp với điều kiện sinh hoạt thực tế.
Nếu bạn đang có nhu cầu thiết kế – thi công nhà cấp 4, nhà mái Nhật trọn gói, hãy liên hệ ngay để được tư vấn chi tiết và giải pháp phù hợp nhất với nhu cầu của gia đình bạn.

























