Nhà Phố 2 Tầng Hiện Đại – Chủ Đầu Tư Anh Ngọc

Nhà Phố 2 Tầng Hiện Đại Có Gara Ô Tô – Chủ Đầu Tư Anh Ngọc

Công trình nhà phố 2 tầng hiện đại của chủ đầu tư Anh Ngọc được thiết kế theo phong cách trẻ trung,
tối ưu công năng sử dụng và phù hợp với nhu cầu sinh hoạt của gia đình hiện đại.
Dự án được triển khai theo hình thức thiết kế và thi công trọn gói, đảm bảo tính đồng bộ và chất lượng trong từng hạng mục.

Thông Tin Tổng Quan Dự Án

  • Chủ đầu tư: Anh Ngọc
  • Loại hình: Nhà phố 2 tầng
  • Phong cách kiến trúc: Hiện đại
  • Điểm nổi bật: Gara ô tô riêng, ban công rộng, mái lệch cá tính
  • Dịch vụ: Thiết kế kiến trúc & thi công xây dựng trọn gói

Giải Pháp Kiến Trúc Mặt Tiền

Ngôi nhà gây ấn tượng với hình khối vuông vắn, đường nét rõ ràng,
kết hợp mái lệch hiện đại tạo cảm giác cao ráo và khác biệt.
Mặt tiền được xử lý hài hòa giữa các mảng đặc – rỗng,
giúp công trình vừa đảm bảo thẩm mỹ vừa tăng khả năng lấy sáng tự nhiên.

Ban công tầng trên được thiết kế rộng rãi, kết hợp hệ lan can chắc chắn,
tạo không gian thư giãn lý tưởng và góp phần làm mềm kiến trúc tổng thể.

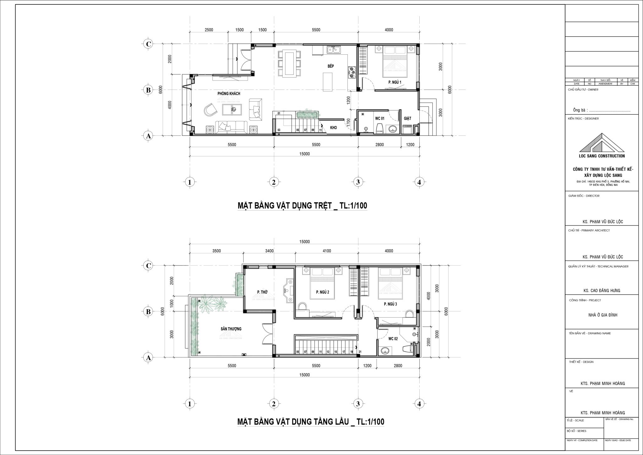
Bố Trí Công Năng Khoa Học

Không gian bên trong được tổ chức hợp lý nhằm tối ưu diện tích và tiện nghi sinh hoạt:

  • Tầng trệt bố trí gara ô tô riêng, thuận tiện di chuyển và bảo quản xe
  • Phòng khách thông thoáng, kết nối hài hòa với khu bếp – ăn
  • Các phòng ngủ được bố trí đảm bảo sự riêng tư
  • Ban công và cửa sổ lớn giúp lấy sáng và thông gió tự nhiên

Vật Liệu & Giải Pháp Thi Công

Công trình sử dụng vật liệu xây dựng và hoàn thiện chất lượng cao,
phù hợp với điều kiện khí hậu và nhu cầu sử dụng lâu dài:

  • Hệ cửa kính giúp không gian sáng và hiện đại
  • Vật liệu hoàn thiện bền đẹp, dễ vệ sinh và bảo trì
  • Kết cấu thi công đúng tiêu chuẩn kỹ thuật, đảm bảo an toàn

Lợi Ích Khi Chọn Thiết Kế & Thi Công Trọn Gói

  • Đồng bộ từ thiết kế đến thi công thực tế
  • Kiểm soát chi phí hiệu quả, hạn chế phát sinh
  • Tiến độ thi công rõ ràng, đúng cam kết
  • Bảo hành công trình sau bàn giao

Kết Luận

Công trình nhà phố 2 tầng hiện đại có gara ô tô của chủ đầu tư Anh Ngọc
là giải pháp nhà ở phù hợp cho gia đình trẻ,
kết hợp hài hòa giữa thẩm mỹ kiến trúc, công năng sử dụng và độ bền lâu dài.
Nếu bạn đang tìm kiếm đơn vị thiết kế – thi công nhà phố trọn gói uy tín,
hãy liên hệ để được tư vấn chi tiết và báo giá phù hợp.

Tư vấn giải pháp nhà ở cho gia đình bạn

Chia sẻ mong muốn của bạn, chúng tôi sẽ đồng hành tư vấn phương án phù hợp và hiệu quả nhất.








* Thông tin của bạn được bảo mật và chỉ dùng để tư vấn.

• Phản hồi nhanh
• Tư vấn đúng nhu cầu
• Báo giá minh bạch